














11 rækkevillaer i 1 plan
Salonikivej i Hårup
FULDT UDLEJET
For venteliste kontakt udlejning og administration, Mads Roholt.
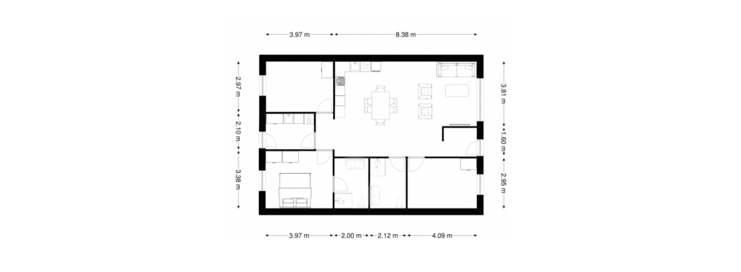
11 attraktive rækkevillaer opført i 2014. Boligerne er i 1 plan og er bestående af 3 værelser, 2 badeværelser og køkkenalrum i åben forbindelse med stuen. Der er yderligere en carport, et integreret udhus og egen terrasse. Boligen er indrettet med trægulve i værelser samt køkkenalrum, og klinker i entré samt badeværelser. Køkkenet er fra Svane Køkken.
Der er masser af skabsplads i værelser og entré, der ligeledes er fra Svane Køkken. Der er desuden gulvvarme i hele boligen. Alle hårde hvidevarer medfølger.
Husdyr kræver tilladelse fra udlejer.
Mads Roholt
Udlejning og administration
Tlf: 4041 3311
mr@byggefirmaet-jh.dk
Fakta boligen
- Antal: 11 stk.
- Boligareal: 120 m2
- Grundareal: 319-448 m2
- Udhus: 6 m2
- Carport: 20 m2
- Energimærke: A2010
Kontaktoplysninger
Tlf: 4086 5890 eller 4083 8300
E-Mail: post@byggefirmaet-jh.dk
Libravej 12
8270 Højbjerg
